1066 Budapest, Teréz krt. 36.
126 m2
| 2600€/HÓ

+ 2 kép
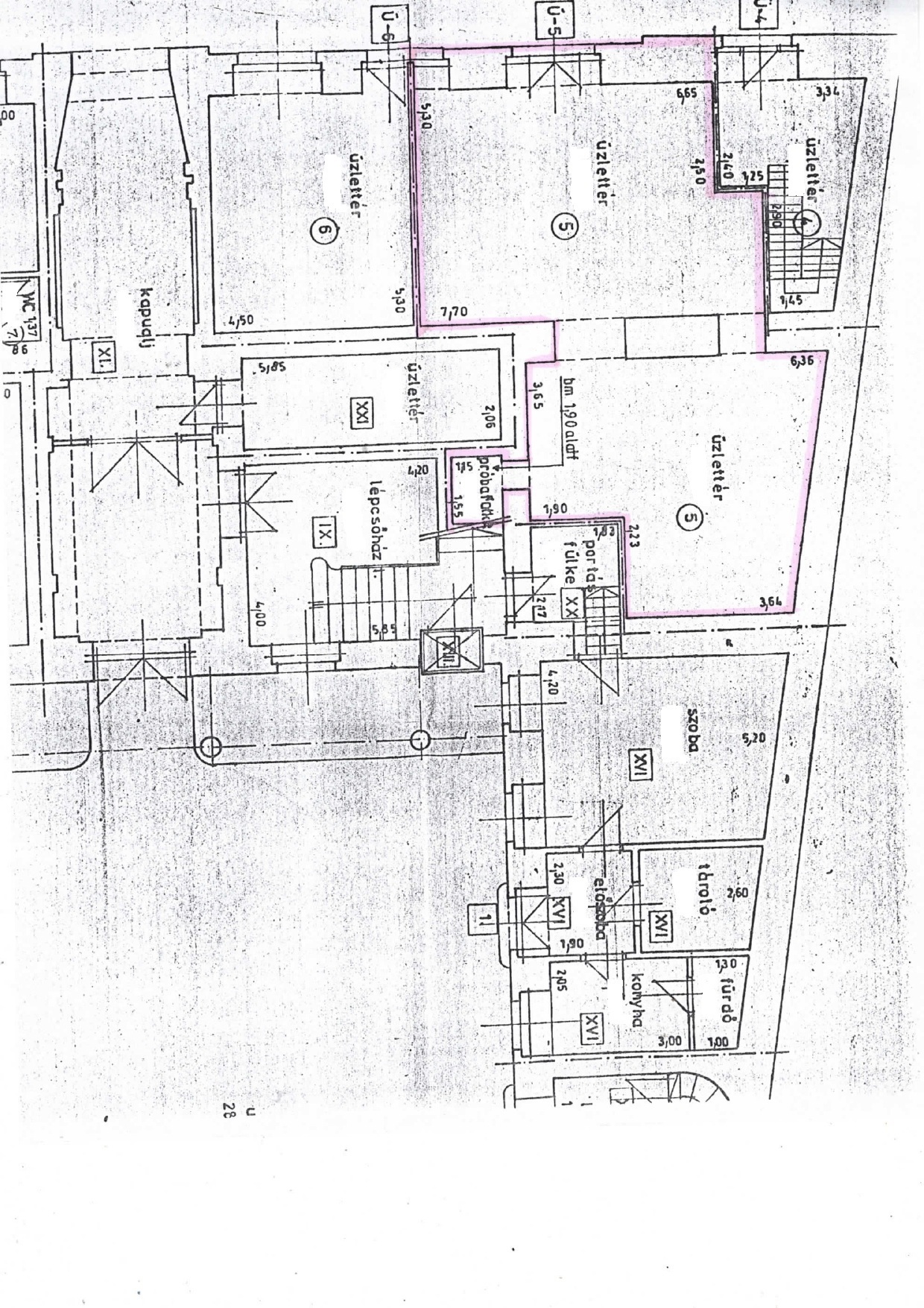
Alaprajzok

Ingatlan Leírása
Nagykörúton, a 4-es, 6 -os villamos vonalán üvegportálos közvetlen utcai üzlethelyiség kiadó, a körút egyik legforgalmasabb részén, az Oktogon és a Nyugati-pályaudvar között, a turisták és utazók által is egyik leginkább látogatott szakaszon.
Az üzlethelyiség kétszintes, elektromos áram, gáz, víz érhető el.
Üzletnek és irodának egyaránt alkalmas, legutóbb szépségszalonként üzemelt. Meleg konyhát igénylő tevékenységre nem alkalmas.
(Közös költség: alkalmas.45.000 HUF/hó + Áfa)